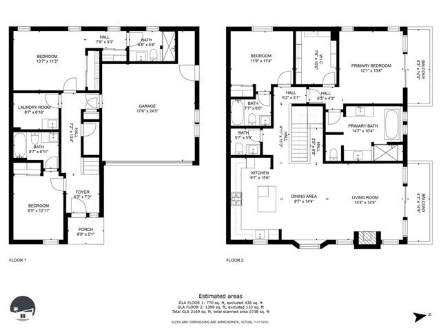
Excellent quality construction, alluring architectural features, a highly functional floorplan and designer inspired touches elevate this townhome leaving a welcoming first impression. The entrance level hosts 2 spacious bedroom suites each with luxurious private baths and well-appointed closets. One of the bedrooms is generous enough to rival the main level master suite.
The second level richly displays an expansive, versatile living space with a centrally focused, eye-catching fireplace. A refreshingly breezy balcony expands the living area outdoors and harmonizes with the grand ceilings and full height windows to usher in rays of natural sunlight. The gourmet kitchen anchors the flowing floor plan while showcasing its sophisticated designer palette of full height cabinetry, quartz countertops, stainless-steel appliances, stylish fixtures and features and a center island ideal for breakfast bar seating. Nestled privately on this level, is an additional spacious bedroom as well as the master retreat which is laden with modern luxury, an enviable walk-in closet and decadent bath amenities that create a wellness spa vibe. This impressive home is in a wonderful neighborhood where prestigious, award-winning schools, unifying community events, delightful sunsets, relaxing beach strolls, parks, acclaimed dining scenes, boutique shopping experiences are all included.





















