Welcome to this charming, light and bright beach bungalow. Located in the desired Tree Section of Manhattan Beach, where you can embrace beach living just blocks from the ocean. Through the private front gate, you are welcomed with an expansive yard and large deck for entertaining and dinning al fresco. Inside, you will enjoy an open floor plan, updated finishings and fixtures, indoor laundry, and beautiful maple wood floors. Energy efficient windows and french doors have been recently installed. In addition, an outdoor 8×10 ft shed can be used as a man cave/she shed or simply extra storage. This is a must see property that has been well cared for and is in pristine condition.
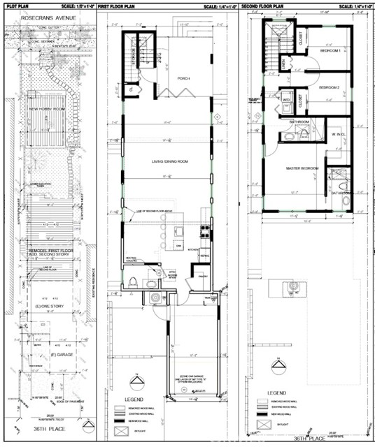
City approved building plans for an addition are available. Turning this 2/1 into a 3 bedroom, 2.5 bathroom at 1,922 sqft with a detached hobby room and powder bath.



























