Designer Beach Cottage in North Manhattan Neighborhood-
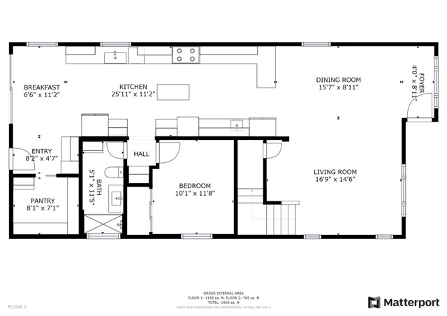
Inviting interiors, plentiful amenities and quintessential beach house style are found in this three bedroom, three bath home – with bonus one-bedroom, one-bath guest quarters in 2005 square feet on a 5200 square foot lot. From the private, charming front yard with cozy sitting area including fire pit, to the thoughtful layout, backyard space and bonus guest room over the separate garage, this home takes advantage of every inch while offering lovely rooms and abundant creature comforts. The open-plan first floor includes a darling entry, engineered hardwood floors, a formal living room with vaulted ceilings and a dedicated dining area. The spacious Chef’s kitchen offers long granite counters with two sinks, a contemporary backsplash and island, a full-size wine fridge, Thermador appliances including dual ovens and a generous walk-in pantry. A bedroom / office with built-in cabinetry and a custom closet is adjacent to a full bath with designer tiles and fixtures. Just beyond the kitchen, the casual breakfast nook is home to sliding glass doors leading out to the large, sunny patio. Here, a built-in barbeque with granite countertops, outdoor tv, Mangaris Diamond wood decking, commercial heaters, and a gas firepit provide the ideal space for hosting friends and family, or just enjoying the Southern California weather year-round. The separate two-car garage boasts a one-bedroom, one-bath (543 sq. ft.) guest accommodations on the second floor, including a living room and dining area as well as laundry and a private entrance. Upstairs in the main house, a bright laundry room features custom cabinetry, a pretty window and a folding shelf. A bedroom and full bath as well as two linen closets are convenient to the second floor. Down the hall, the primary suite is flooded in natural light and includes a large walk-in closet with custom built-ins, a private deck for basking in the sun, and a spa-like bath with soaking tub, large glass shower, and dual vanities. Made for living in style in a beautiful northside Manhattan Beach neighborhood and convenient to everything from local shopping and dining, this home has it all.
Additional features include:
• Central AC/Heat
• Dual EV chargers in garage
• Tesla roof and powerwall (Bonus Garage roof)
• Alarm system
• Fire sprinklers
• Outdoor lighting
• Epoxy floors-garage
• Outdoor shower
*View the virtual tours of the main house and bonus room










































































