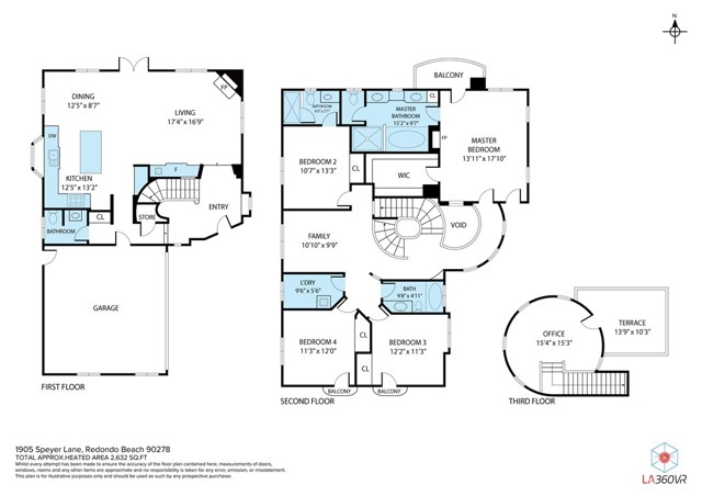
We are proudly present this beautiful detached townhome in one of the best location located in the Redondo Beach. Walking distance to award winning Jefferson Elementary School. As good as new, featuring high ceiling entrance way, skylight, living room with fireplace and wet bar, dinning room connected with kitchen perfect for entertaining. Opening the sliding door to the back yard which is perfect for hosting parties. Half bath downstairs for guests, 2 car attached garage with storage shelfs and extra outlet for your electrical car charging. Master bedroom with walking closet with Romeo and Juliet style balcony perfect for summer breath, dual fireplace, master bath featuring double vanities, huge tub and walking shower. Upstairs offering two extra bedrooms, one hallway bathroom, sitting area, laundry room with wash sink, additional en-suit perfect for guest. 3rd floor loft gives extra open space and roof top is perfect for day and night. Seller installed central air for extra comfort. There is a central vacuum system to make life easier.

































































