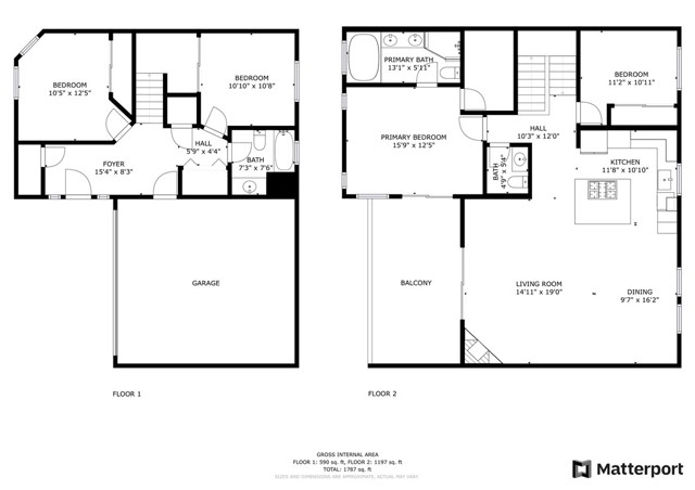
Beautiful Redondo Beach Townhouse located in a wonderful location Updated kitchen with shaker cabinets , farm sink and built-in appliances. Vaulted Ceilings, Central Air, Hardwood and Travertine Floors, and Gas Fireplace, this Spacious and Sunny Home welcomes you with a Highly Desirable Open Floor Plan that flows into a West Facing Balcony, creating an Indoor/Outdoor Living Experience. Top level features a Spacious Master Suite including a Large Walk-in Closet and Master Bath with Dual Vanities, Spa Tub and Separate Shower. Completing the top level is a Guest Bath and additional Bedroom that could double as an Office, Nursery or Den. Lower level Front Entry leads to 2 more Bedrooms, Full Bath, Laundry, and 2 Car Attached Garage w/ storage. Completely Move-in Ready, and located within Walking Distance of Acclaimed Schools, Parks, Restaurants, and Shopping.All this less than 2 miles from So Cal’s beautiful beaches!! (Information considered reliable but not guaranteed. Buyer to verify square footage)
MORE PICTURES FRIDAY FEB 12th






















