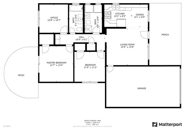
Remodeled home located in the highly desirable Jefferson Elementary School district on an oversized 4,051sqft lot! Wonderful curb appeal with a white picket fence, a large front yard with environmentally-friendly turf, a charming porch, and smooth stucco exterior. The solid wood front door opens into the bright main living area with refinished hardwood floors, crown molding, recessed lights and direct access to the garage. Remodeled kitchen features stainless steel appliances, granite countertops, tile floors and a dining area overlooking the front yard. 3 bright bedrooms and 2 remodeled bathrooms with a coastal inspiration. The main bedroom has sliding doors to the huge grassy backyard and flagstone patio. It’s rare to find a home in the Golden Hills with large front and rear yards so don’t miss this fantastic opportunity to live on quiet one-way street, one block from Hermosa, a short drive to King Harbor, the Redondo pier and one mile to the beach.
























