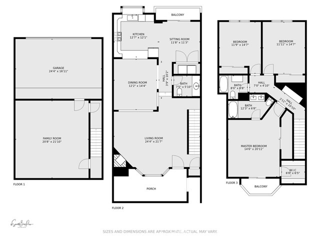
Fabulous spacious south Redondo Beach. Fantastic set up for large private office setting for those who find themselves at home for the duration. Previously earmarked as the family/recreation room, it’s large enough for all. You can enter from the garage if it is necessary to bring clients in without disturbing the household. With over 2,400 square feet in the floor plan, there’s plenty of living space and working space. The living area is on the main floor providing a homey feel as you enter. The beautiful gourmet kitchen and bath have been recently remodeled. Located on a quiet street just blocks from the beach, restaurants, shopping and schools. Move right in and experience the California beach lifestyle with ocean breezes coming through your windows, outdoor BBQ’s all year round and walks to the beach. There are numerous upgrades throughout this beautiful townhome. Don’t miss this opportunity.

































