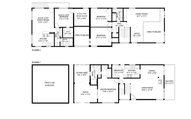
Live your best life in this stunning ocean view home on a south facing walk street! An ocean view walk street home at this price is rare, and this one will even help pay your mortgage! One bedroom rental over the garage will pay your property taxes for the year! Options galore! Live in one, rent the other. Rent them both as a great investment. Build your dream home later. Or live in the front and have the best ever guest cottage for your weekend guests! This mid century beach house is full of light with 20+ ft ceilings and plenty of windows showcasing the ocean views. Spread out to the walk street deck to entertain and relax. There’s not a better place to enjoy your morning coffee or evening cocktail – sunup to sunset! In addition to the 3 br and 2 baths, a huge light filled art studio/family room/gym or office adds flexibility and extra living space. Beachy kitchen features a cozy breakfast nook, stainless steel appliances, granite countertops. All this and still a second living unit over the garage! This is a legal duplex, and the back unit is a completely remodeled 1 bed and 1 bath unit w/wood floors, new windows, new light fixtures and a brand new kitchen. Stainless steel stove, new cabinets, quartz countertops – this rental is HOT!! Don’t miss the walk-in closet and bonus room off of the bedroom which can be used for storage or a home office. Walking distance to the beach and close proximity to restaurants and night life! Opportunity knocks- what are you waiting for?














































