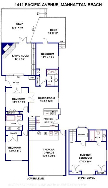
This fully renovated sunny beach house is centrally located and walking distance from downtown Manhattan Beach. This home has beautiful high end finishes coupled with new technology that make living by the beach comfortable and enjoyable for many years to come. The spacious living room with beautifully restored wood floors has French doors with beveled glass that open up to a large deck for entertaining. The kitchen is open to the dining room and features Kitchen Aid stainless appliances including a professional grade stove and hood, Microwave drawer, farmhouse sink and quartz counter tops. The beautifully remodeled bathrooms feature quartz counter tops, custom mosaic tile, Pottery barn mirrors and lights, Restoration Hardware faucets and Velux skylights. The office/bedroom has two sets of French doors giving this home an open and airy feeling. The renovation also included new dual pane Milgard Tuscany windows, designer lighting, wood floors, window coverings, new paint, vinyl fencing, door hardware and closet doors. This home is on an oversized “Tree Section” lot across from award winning Pacific Elementary School. It is a wonderful location for walking or riding bikes to parks, restaurants, shopping and the beach.
































