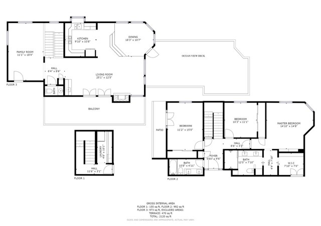
Views! Views! Views! Looking for a multi-million-dollar view with a million-dollar budget? This spectacular panoramic ocean view home is a once in a lifetime opportunity to procure that unblockable PV to Malibu panorama that normally comes only at a price tag that few can afford. Entertainer’s delight is an understatement! Spacious penthouse style living – the top floor living space features an open floor plan with living room, dining and kitchen all opening up through French doors to two expansive deck spaces off of the living and dining room with unobstructed panoramic PV to Malibu views everywhere. Room for outdoor living at its best, while enjoying the sparkling blue ocean and spectacular sunsets. Oh, and you want a yard TOO?? This home delivers! A private and sunny back yard is just one more reason to love this move in ready home. Hardwood floors and a stone fireplace warm up the living space, and newly remodeled bathrooms are on trend with warm contemporary white tones. Flexible floor plan with four spacious bedrooms or three and a den, including a master suite with 10+ foot ceilings, a gorgeous bathroom, dressing area and a walk-in closet. Prime south Redondo location means walking distance the beach, Starbucks, local restaurants, shopping and award-winning schools K-12. Don’t miss this special home – opportunity to own a turnkey home with these spectacular views at an affordable price is rare indeed!



























