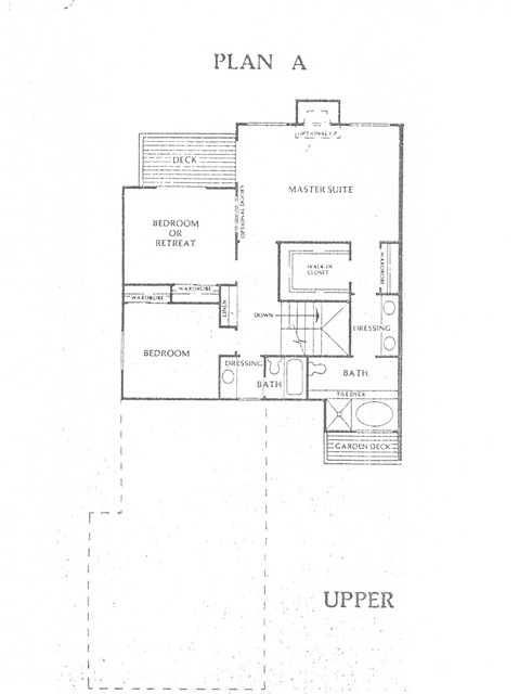
This high quality 3 bed, 2.5 bath ocean view townhouse sits inside a spacious, gated community in Rolling Hills Estates, Palos Verdes Peninsula. Only 2 homes on a lot. Each lot faces the open grassy park with many guest parking spaces available. The handsome kitchen features recessed lights, a built-in Sub Zero refrigerator, newer stainless steel appliances (stove, vent, oven, and microwave), 3-section sink, and freshly cleaned tile countertops. A separate laundry room exists and lots of closet space is available throughout the house. The oversized den has ample room to function as both a family room and an office. It has direct access to the garage and a private patio for you to enjoy fresh air and open space. The large living room with fireplace opens up to an entertainer’s delight – a huge freshly painted patio where you can enjoy the ocean breeze and a panoramic ocean view stretching from Catalina to Malibu year round. All 3 bright and airy bedrooms are located on the 2nd level. The huge master bedroom has vaulted ceilings, many windows, a walk-in closet and balcony. The spacious master bathroom has a unique bathtub, separate shower, and a double sink vanity. Each bedroom features a peaceful ocean view for you to enjoy the colorful sunset. The HOA fee is low considering all the offerings, including tennis courts, swimming pool, and a horse stable with fire insurance coverage. Local gems of Palos Verdes such as award winning schools, Peninsula shopping center, parks, and golf courses are just minutes away.
—















































